start
portfolio
contact
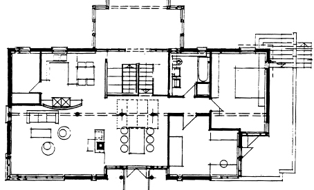
Residential building Dr Olason, Reykjavik - 1989
GUNNLAUGUR STEFAN BALDURSSON
Private house Dr. Olason, Reykjavik, Iceland
Build 1989