start
portfolio
contact
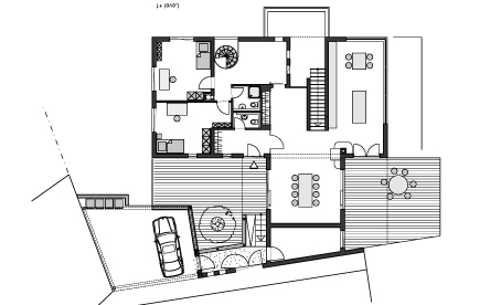
Residential building Langemeyer, Siegen - 2001
GUNNLAUGUR STEFAN BALDURSSON
Private house Langemeyer, Siegen, Germany
Build: 2003