start
portfolio
contact
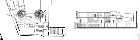
Nietzsche Museum Naumburg - 2001
GUNNLAUGUR STEFAN BALDURSSON
International Competition: 2001.
Shortlisted.